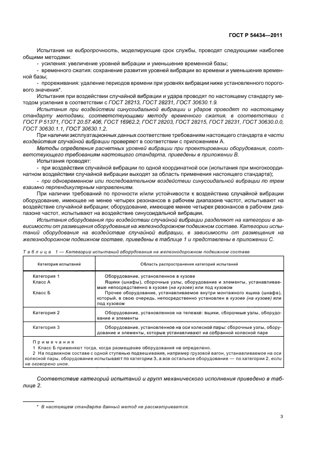
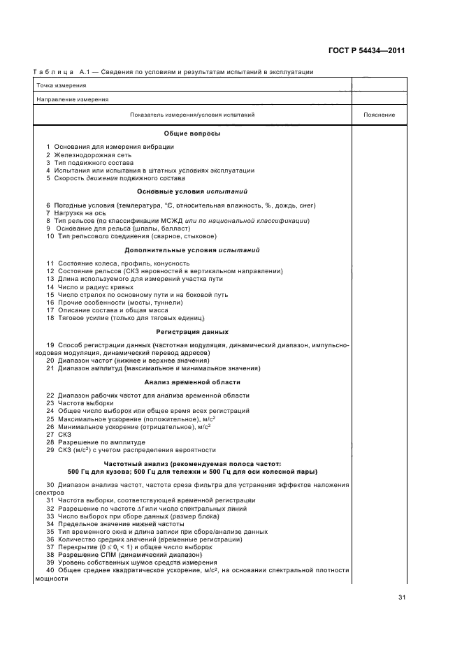
| ||||||||||||||||||||||||||||||||||||||
Скачать ГОСТ Р 54434-2011 Оборудование железнодорожного подвижного состава. Испытания на удар и вибрациюДата актуализации: 01.06.2025
| ||||||||||||||||||||||||||||||||||||||
| Обозначение: | ![]() ГОСТ Р 54434-2011 |
| Статус: | отменён |
| Название рус.: | Оборудование железнодорожного подвижного состава. Испытания на удар и вибрацию |
| Название англ.: | Railway application. Rolling stock equipment. Shock and vibration |
| Дата актуализации текста: | 06.04.2015 |
| Дата актуализации описания: | 01.07.2023 |
| Дата издания: | 20.02.2012 |
| Дата введения: | 01.03.2012 |
| Дата окончания срока действия: | 01.03.2017 |
| Код ОКП: | 318000 |
| Содержит требования: | EN 61373:1999 |
| На территории РФ пользоваться: | ГОСТ 33787-2016 |
| Нормативные ссылки: | ГОСТ Р 51371-99; ГОСТ 20.57.406-81; ГОСТ 2582-81; ГОСТ 9219-88; ГОСТ 16962.2-90; ГОСТ 17168-82; ГОСТ 17516.1-90; ГОСТ 24346-80; ГОСТ 26883-86; ГОСТ 28203-89; ГОСТ 28213-89; ГОСТ 28215-89; ГОСТ 28231-89; ГОСТ 30630.0.0-99; ГОСТ 30630.1.1.-99; ГОСТ 30630.1.2-99; ГОСТ 30630.1.9-2002; ГОСТ 30631-99 |
| Область применения: | Настоящий стандарт распространяется на оборудование всех видов, в том числе механическое, пневматическое, электрическое и электронное, применяемое на железнодорожном подвижном составе. Стандарт устанавливает методы испытаний на воздействие вибрации и удара (испытания на стойкость (устойчивость и/или прочность) к механическим внешним воздействующим факторам). Стандарт устанавливает методы испытаний на соответствие требованиям, установленным ГОСТ 17516.1 (таблица 1, группы механического исполнения М25, М26, М27), ГОСТ 30631 (приложение Б, таблица Б.1, группы механического исполнения М25, М26, М27), ГОСТ 2582 (подпункт 2.2.1). Виды испытаний на воздействие вибрации и удара (испытаний на стойкость (устойчивость и/или прочность) к механическим внешним воздействующим факторам) – по ГОСТ 16504 |
| Список изменений: | №0 от 01.03.2017 (рег. 11.07.2016) «Текстовое изменение; Изменено заглавие» |
| Расположен в: | |













































