| ||||||||||||||||||||||||||||||||||
Скачать ГОСТ Р 53299-2009 Воздуховоды. Метод испытаний на огнестойкостьДата актуализации: 01.06.2025
| ||||||||||||||||||||||||||||||||||
| Обозначение: | ![]() ГОСТ Р 53299-2009 |
| Статус: | заменён |
| Название рус.: | Воздуховоды. Метод испытаний на огнестойкость |
| Название англ.: | The test method for the fire resistance. Ventilation ducts |
| Дата актуализации текста: | 06.04.2015 |
| Дата актуализации описания: | 01.07.2023 |
| Дата издания: | 20.04.2009 |
| Дата введения: | 01.05.2009 |
| Дата окончания срока действия: | 01.09.2014 |
| Код ОКП: | 486367 |
| Заменяющий: | ГОСТ Р 53299-2013 |
| Нормативные ссылки: | ГОСТ Р 8.585-2001; ГОСТ 12.1.019-79; ГОСТ 12.2.003-91; ГОСТ 6616-94; ГОСТ 30247.0-94 |
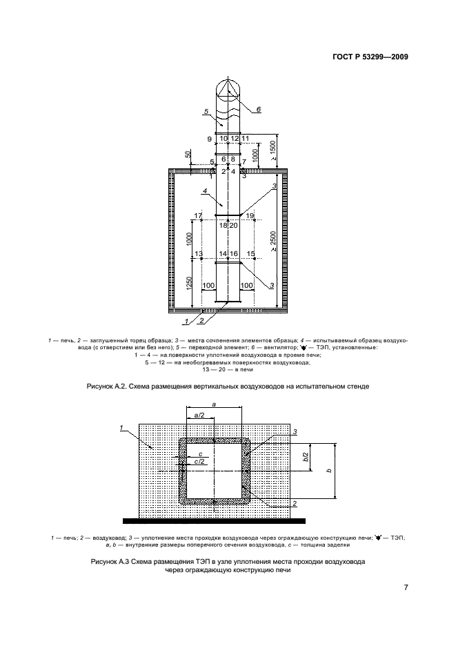
| Область применения: | Настоящий стандарт устанавливает метод испытания на огнестойкость следующих элементов конструкций: - воздуховодов приточно-вытяжных систем общеобменной, аварийной, противодымной вентиляции, систем местных отсосов, систем кондиционирования воздуха, а также дымоходов различного назначения; - каналов технологической вентиляции, в том числе газоходов. Настоящий стандарт не предназначен для проведения испытаний на огнестойкость: - вентиляционных каналов, выполненных в пустотах конструкций стен и перекрытий; - дымовых вытяжных каналов, выполненных в элементах ограждающих строительных конструкций |
| Расположен в: | |













