| Обозначение: |  ГОСТ Р 41.52-2001 |
| Статус: | заменён |
| Название рус.: | Единообразные предписания, касающиеся конструкции транспортных средств общего пользования малой вместимости |
| Название англ.: | Uniform provisions concerning the construction of small capacity public services vehicles |
| Дата актуализации текста: | 06.04.2015 |
| Дата актуализации описания: | 01.01.2021 |
| Дата издания: | 16.01.2002 |
| Дата введения: | 01.01.2002 |
| Дата окончания срока действия: | 01.01.2007 |
| Код ОКП: | 451700 |
| Заменяющий: | ГОСТ Р 41.52-2005 |
| Содержит требования: | Правила EEC UN № 52 |
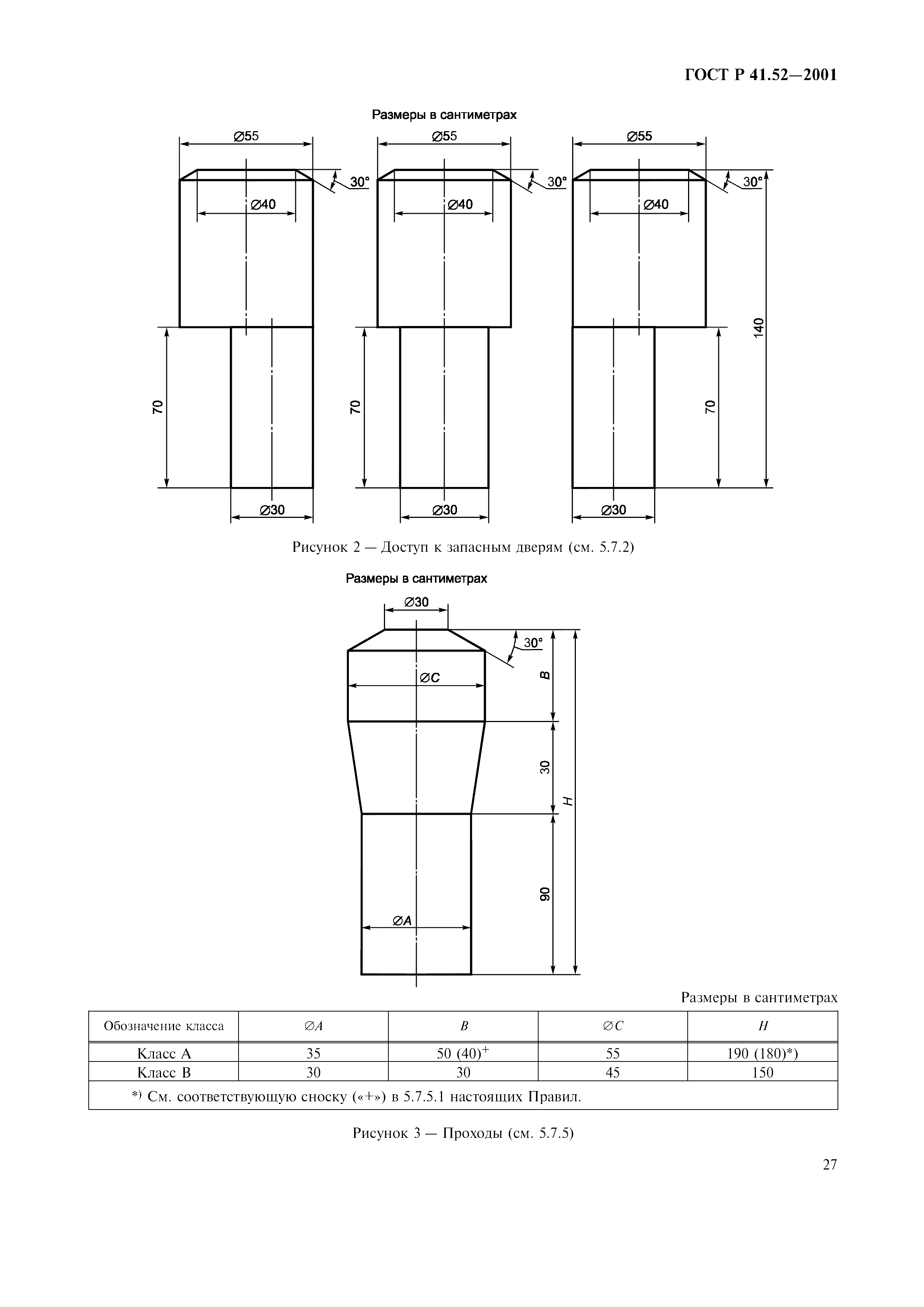
| Область применения: | Настоящие Правила распространяются на одноэтажные транспортные средства категорий М2 и М3 с жесткой базой, сконструированные и построенные для перевозки людей, вместимостью не более 22 сидящих или стоящих пассажиров, исключая водителя |
|
| Расположен в: |
|