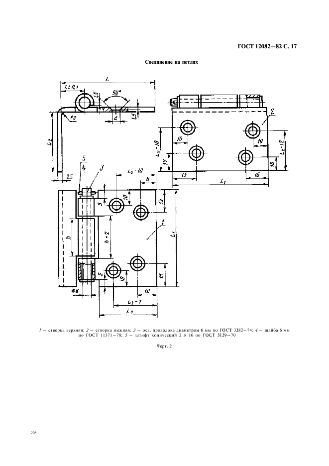
| ||||||||||||||||||||||||||||||||||
Скачать ГОСТ 12082-82 Обрешетки дощатые для грузов массой до 500 кг. Общие технические условияДата актуализации: 01.06.2025
| ||||||||||||||||||||||||||||||||||
| Обозначение: | ![]() ГОСТ 12082-82 |
| Статус: | действующий |
| Название рус.: | Обрешетки дощатые для грузов массой до 500 кг. Общие технические условия |
| Название англ.: | Roof boarding for consignments up to 500 kg. General specifications |
| Дата актуализации текста: | 06.04.2015 |
| Дата актуализации описания: | 01.07.2023 |
| Дата издания: | 01.07.2008 |
| Дата введения: | 01.01.1983 |
| Код ОКП: | 537111 |
| Взамен: | ГОСТ 12082-77 |
| Нормативные ссылки: | ГОСТ 2140-81; ГОСТ 2695-83; ГОСТ 3282-74; ГОСТ 3560-73; ГОСТ 4028-63; ГОСТ 4034-63; ГОСТ 7016-82; ГОСТ 8486-86; ГОСТ 14192-96; ГОСТ 15612-85; ГОСТ 16561-76; ГОСТ 16588-91; ГОСТ 17305-91; ГОСТ 18106-72; ГОСТ 18211-72; ГОСТ 19903-74; ГОСТ 19904-90; ГОСТ 21100-93; ГОСТ 21136-75; ГОСТ 21140-88; ГОСТ 24454-80; ГОСТ 25014-81; ГОСТ 25064-81; ГОСТ 26838-86 |
| Область применения: | Настоящий стандарт распространяется на дощатые разборные и неразборные обрешетки для грузов массой до 500 кг и должен применяться при разработке стандартов или другой нормативно-технической документации на обрешетки, предназначенные для упаковывания конкретных видов продукции |
| Список изменений: | №1 от 01.01.1985 (рег. 29.05.1984) «Срок действия продлен» №2 от 01.05.1987 (рег. 13.11.1986) «Срок действия продлен» №3 от 01.01.1993 (рег. 28.04.1992) «Срок действия продлен» |
| Расположен в: | |




















