| ||||||||||||||||||||||||||||||||||||||
Скачать ГОСТ 6141-91 Плитки керамические глазурованные для внутренней облицовки стен. Технические условияДата актуализации: 01.06.2025
| ||||||||||||||||||||||||||||||||||||||
| Обозначение: | ![]() ГОСТ 6141-91 |
| Статус: | заменён |
| Название рус.: | Плитки керамические глазурованные для внутренней облицовки стен. Технические условия |
| Название англ.: | Glazed ceramic tiles for lining of the walls. Specifications |
| Дата актуализации текста: | 06.04.2015 |
| Дата актуализации описания: | 01.07.2023 |
| Дата издания: | 01.09.2002 |
| Дата введения: | 01.07.1991 |
| Дата окончания срока действия: | 01.06.2020 |
| Код ОКП: | 575210 |
| Взамен: | ГОСТ 6141-82 |
| Заменяющий: | ГОСТ 13996-2019 |
| Содержит требования: | СТ СЭВ 2047-88 |
| Нормативные ссылки: | ГОСТ 12.3.009-76; ГОСТ 12.3.020-80; ГОСТ 8273-75; ГОСТ 9078-84; ГОСТ 9142-84; ГОСТ 9570-84; ГОСТ 14192-77; ГОСТ 15102-75; ГОСТ 15846-79; ГОСТ 17308-88; ГОСТ 20435-75; ГОСТ 21929-76; ГОСТ 22225-76; ГОСТ 26663-85; ГОСТ 27180-86;СТ СЭВ 3979-83;ОСТ 23.4.97-81;ОСТ 63.30-78 |
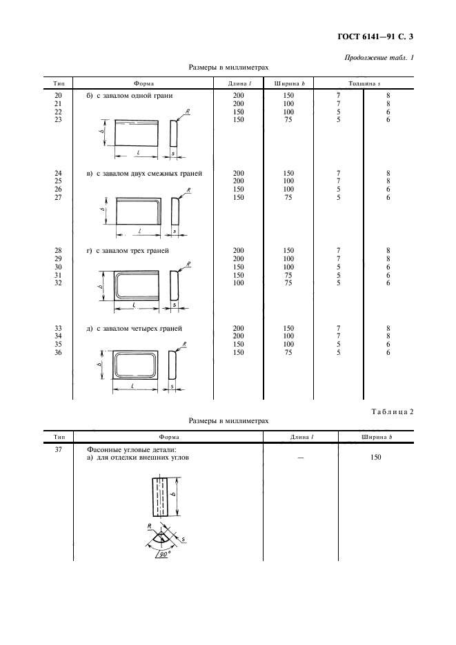
| Область применения: | Настоящий стандарт распространяется на керамические глазурованные плитки и фасонные детали к ним. Стандарт не распространяется на плитки, предназначенные для облицовки поверхностей, подверженных механическим воздействиям, влиянию мороза, высоких температур, грунтовых вод и агрессивных сред |
| Расположен в: | |













